DEPARTAMENTO SAN MARTÍN 824

Exclusivo departamento tipo dúplex de dos dormitorios en el microcentro de Ushuaia.

SAN MARTÍN 824

CARACTERÍSTICAS

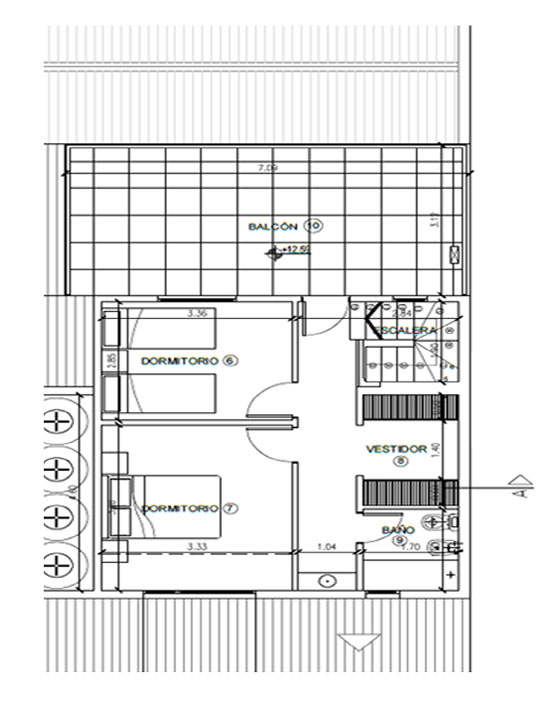
En plena calle San Martín (a pasos de 9 de Julio), se encuentra esta unidad premium tipo dúplex a la venta, en un tercer piso. Cuenta con 100 m² cubiertos, distribuidos de la siguiente manera:

* Planta baja: Amplio living comedor, cocina, lavadero / depósito y baño completo.
* Planta alta: Dos dormitorios, vestidor y baño con antebaño.

Además, posee una terraza privada de 25 m² aproximados.

Opción de financiación, también tomamos propiedades por menor valor.

FOTOGRAFÍAS DE LA PROPIEDAD

SAN MARTÍN 824
SAN MARTÍN 824
SAN MARTÍN 824
SAN MARTÍN 824
SAN MARTÍN 824
SAN MARTÍN 824
SAN MARTÍN 824
SAN MARTÍN 824
SAN MARTÍN 824
SAN MARTÍN 824
SAN MARTÍN 824
SAN MARTÍN 824

HABLAR CON UN ASESOR

RESUMEN

* Dirección: San Martín 824
* Piso: Tercero
* Metros Cuadrados Cubiertos: 100 m²
* Dormitorios: 2
* Apto para crédito hipotecario: No
* Comodidades del edificio: Ascensor

PLANOS DE LA PROPIEDAD

PLANOS SAN MARTÍN 824
PLANOS SAN MARTÍN 824
Contacto

CONTACTO

Completá el formulario y en breve nos estaremos comunicando.