TERRENO CABO DE HORNOS Y EL CEIBO

Excelente esquina en venta de 474,18 m² con un proyecto aprobado de 7 departamentos.

TERRENO CABO DE HORNOS Y EL CEIBO

DESCRIPCIÓN

Si buscás un desarrollo inmediato, este es el punto de partida.

En la esquina de Cabo de Hornos y El Ceibo, a metros de Av. Alem, presentamos un lote de 474,18 m² que ya viene con lo más valioso: viabilidad técnica, ubicación estratégica y un proyecto aprobado para comenzar a desarrollar.

Resulta especialmente atractivo para desarrolladores que buscan iniciar un nuevo proyecto con factibilidad inmediata, o para inversores orientados a la generación de activos inmobiliarios de alta demanda.

Con escritura, todos los servicios y zonificación R2, este terreno permite avanzar sin etapas intermedias, y además, es apto para crédito hipotecario.

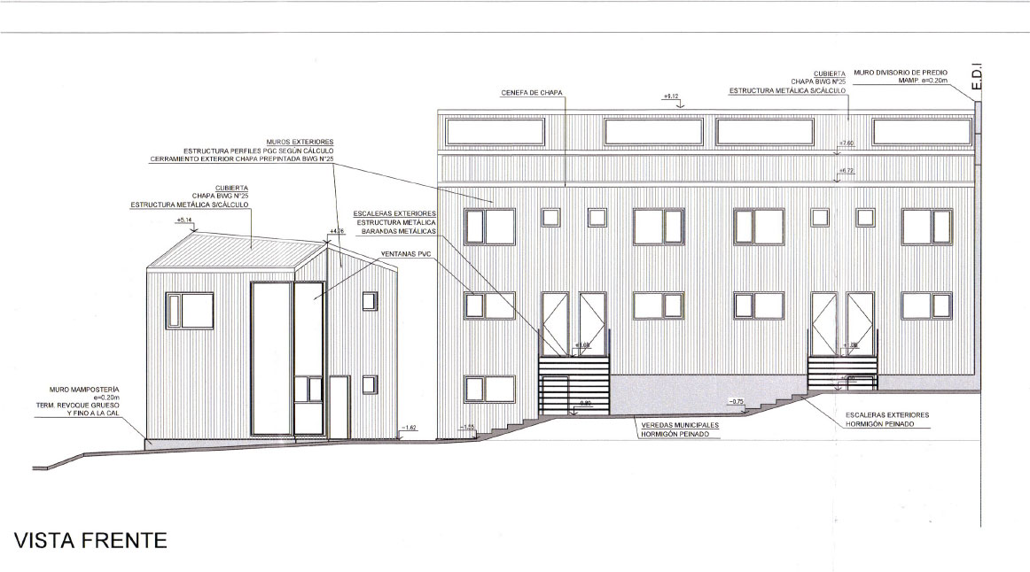
El proyecto aprobado incluye siete unidades: dos departamentos de tres dormitorios y cinco de dos dormitorios.

FOTOGRAFÍAS DE LA PROPIEDAD

TERRENO CABO DE HORNOS Y EL CEIBO
TERRENO CABO DE HORNOS Y EL CEIBO
TERRENO CABO DE HORNOS Y EL CEIBO
TERRENO CABO DE HORNOS Y EL CEIBO
TERRENO CABO DE HORNOS Y EL CEIBO
TERRENO CABO DE HORNOS Y EL CEIBO
TERRENO CABO DE HORNOS Y EL CEIBO
TERRENO CABO DE HORNOS Y EL CEIBO
TERRENO CABO DE HORNOS Y EL CEIBO

HABLAR CON UN ASESOR

RESUMEN

* Dirección: Cabo de Hornos esquina El Ceibo.
* Metros Cuadrados: 474,18 m²
* Zonificación: R2
* Servicios: Todos
* Apto para crédito hipotecario: Sí

PLANOS DE LA PROPIEDAD

TERRENO CABO DE HORNOS Y EL CEIBO
TERRENO CABO DE HORNOS Y EL CEIBO
Contacto

CONTACTO

Completá el formulario y en breve nos estaremos comunicando.